kostenlose Marktwertanalyse

IHR neues Büro ? Fast mitten in Buchholz. Werbewirksame Lage.

Objekt-Nr. NH-1048 – Büro/Praxis zur Miete in Buchholz


Ansprechpartner

Thies Hauschildt

Telefon: 004941819448662
Telefax: +49 4181 9448650

T.hauschildt@remax-buchholz.de

Kontakt aufnehmen

Eckdaten

Miete zzgl. NK 675 €
Nebenkosten 260 €
Miete inkl. NK 935 €
Kaution 2.025 €
Heizkosten in Nebenkosten enthalten

Beschreibung

HABEN SIE EINE IDEE?
Ist hier IHR neues Büro dafür ? Fast mitten in der Stadt.
Bezahlbar und an werbewirksamer, stark frequentierter Einfallstraße in Buchholz. Nahe an der Fußgängerzone und Stadtverwaltung.
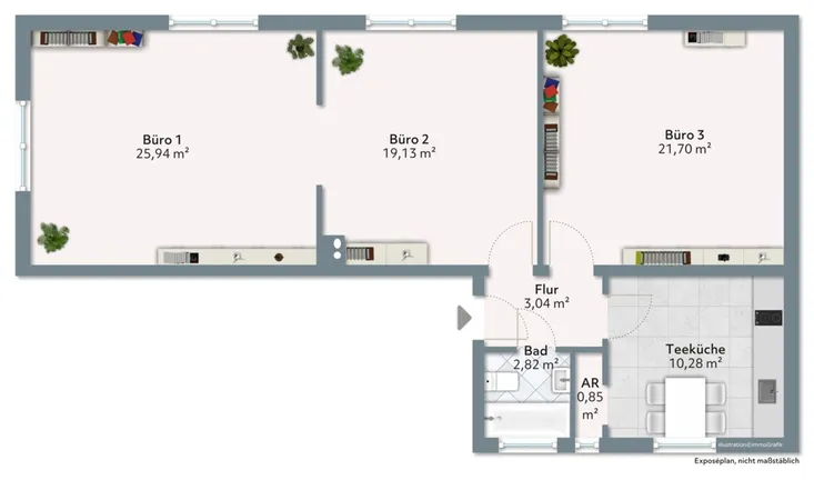
Die Räume liegen im 1.OG.
Parkplätze rund um das Gebäude und in nächster Nähe.
Bezug nach Vereinbarung. Auch umgehend möglich.

Sonstiges

Zur genannten Nettokaltmiete kommen die Nebenkosten und der aktuell gültige Mehrwertsteuersatz hinzu.

Eine Einbauküche ist nicht vorhanden, Anschlüsse sind aber vorhanden.

Alle Angaben in diesem Exposé wurden sorgfältig und so vollständig wie möglich gemacht. Dennoch kann das Vorhandensein von Fehlern nicht ausgeschlossen werden. Die Angaben in diesem Exposé erfolgen daher ohne Gewähr und basieren ausschließlich auf Informationen, die uns vom Vermieter bzw. von Dritten zur Verfügung gestellt wurden, so dass wir eine Gewähr für die Vollständigkeit, Richtigkeit und Aktualität dieser Angaben nicht übernehmen können. Irrtum und Zwischenverkauf/Zwischenvermietung bleibt vorbehalten. Bitte haben Sie Verständnis, dass Anfragen nur nach Angabe Ihrer vollständigen Adresse mit Telefonnummer im Interesse unserer Auftraggeber, die uns Ihre Vermögenswerte anvertraut haben und nach den Vorgaben unseres Maklerauftrages bearbeitet werden.

Ausstattungsbeschreibung

Gepflegt und solide.
Schauen wir uns gerne gemeinsam an.

Lagebeschreibung

An der Hamburger Straße Ecke Bendestorfer Straße. Nahe der Stadtverwaltung.
Das Büro ist auch zu Fuß gut erreichbar.
Parkplätze für PKW's vor der Tür und in nächster Nähe.

Buchholz in der Nordheide wächst stetig und ist immer offen für neue Ideen.

Mieterprovision inkl. MwSt

2,38 Nettokaltmieten inkl. 19 % MwSt.

Ausstattung

Adresse 21244 Buchholz
Bürofläche ca. 84 m²
verfügbar ab 19.03.2026
Kategorie Standard
Baujahr 1963
Befeuerungsart Öl
Heizungsart Zentralheizung
Verkaufstatus offen

Energieverbrauchsausweis

Endenergieverbrauch 188 kWh/(m²*a)
Endenergieverbrauch-Strom 50 kWh/(m²*a)
Endenergieverbrauch-Wärme 138 kWh/(m²*a)
Befeuerungsart Öl
Heizungsart Zentralheizung
Wesentlicher Energieträger GAS
Baujahr (Energieausweis) 1936
Gültig bis 28.05.2028

0200400+


Objekt-Nr. NH-1048 – Büro/Praxis zur Miete in Buchholz

Zurück zu den Immobilienangeboten

Erfolg! Vielen Dank für Ihre Bewertung.

Fehler! Bitte füllen Sie alle Felder aus.